Commercial

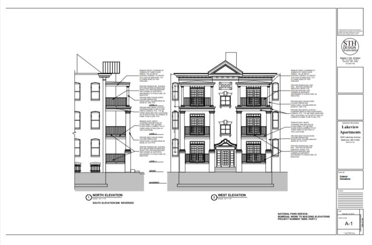
2435 Lakeview Avenue
Baltimore, MD

An historic multifamily apartment building that consists of twelve (12) rented units. Our SOW included demolition of front façade and full restoration back to its original 1900’s design and construction. This scope included: new 16’-0” and 8’-0” long fiberglass Tuscan Tapered columns, styrofoam dentil course and cornice, eaves, wooden railing, flooring, rough and finish carpentry, installation of all finishes (drywall, ceilings, trims and painting).

qxif-home

STAY UP TO DATE WITH INDUSTRY NEWS BY SUBSCRIBING TO THE EJALE GROUP MAILING LIST

Fill out my online form.

© 2025 EJALE Group Inc. All rights reserved. | Website developed by GoME